プランドール諸福
住道駅へ徒歩圏内。始発駅の、大阪メトロ長堀鶴見緑地線「門真南」も利用可能。

いよいよ二期分譲開始!繰り返しの揺れを吸収して抑える制震ダンパー「GVA-II」を採用!「耐震等級3」で地震に強く、「ZEH」基準をクリアしたエコな住まいが誕生いたします。
区画図
大きな公園や小学校が徒歩4分と近く、お買物施設が点在する、子育て世帯に嬉しい住環境です。

オリジナル床下収納と制震ダンパーが標準仕様の安心の住まい!

フジヒサオリジナル大型収納「タルパ」
デッドスペースとなっていた床下に着目。
深さ約50cmの広大な有効空間を床下に創出することで、収納不足を一気に解消します。いつでもすっきり片付いたお家にはゆとりが生まれます。

新・ベーシック制震システム GVAⅡ
10万棟の納入実績を誇る「GVA」から受け継いだ「ダイヤモンド構造」で、地震エネルギーを分散して受け止め、すまいの変形を抑えます。繰り返しの大地震を受けても、住み続けられるすまいが実現!
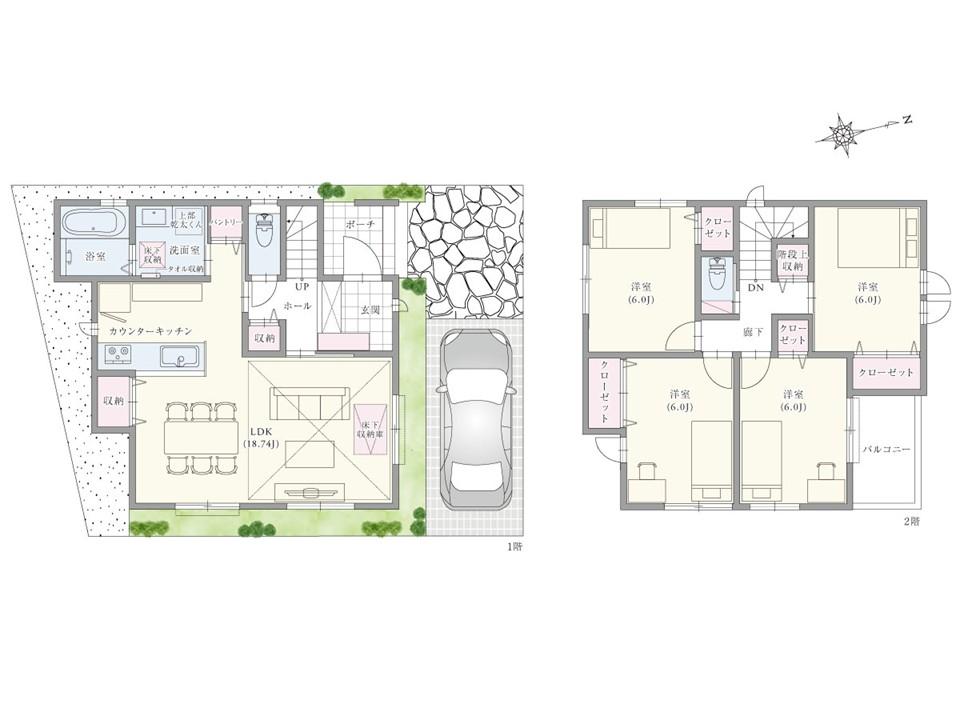
ご自宅でのお仕事にぴったりの洋室がある『Ⅰ-2号地』



建物の詳細については、モデルハウスページにてご確認くださいませ。
- Ⅰ-2号地
-
- 土地面積:77.64㎡、延床面積:122.64㎡
- 土地面積:77.64㎡、延床面積:122.64㎡
- Ⅰ-2号地

ホームオフィスなどにおすすめのスペースで仕事や趣味に没頭できるお家
1階には大きな収納付きで、書斎のように使いやすい洋室を配置。自宅に仕事場を設けたいご家族様にうってつけの空間です。玄関から居住スペースを通らずにアクセスでき、お仕事での来客にスムーズに対応できます。
- Ⅱ-2号地
-
- 土地面積:122.19㎡、延床面積:123.12㎡
- Ⅱ-3号地
-
- 土地面積:94.13㎡、延床面積:110.30㎡
- Ⅱ-4号地
-
- 土地面積:90.66㎡、延床面積:133.04㎡
- Ⅱ-2号地
- Ⅱ-3号地
- Ⅱ-4号地

20帖超のLDKにはパントリーやリビング収納付き
広々とした空間を確保した玄関では、壁にたくさんの写真や絵画を飾ることができ、ギャラリースペースに最適です。玄関ホールから室内に入れば、約20.91帖の広さのLDKがゆとりを感じさせる邸です。

大型床下収納『タルパ』など収納たっぷり
LDKの床下には、大型収納「タルパ」付きです。広大な有効空間を床下に創出し、収納不足を一気に解消できます。駐車場への掃き出し窓にも近いため、アウトドアグッズの保管場所としても最適です。

バルコニーの窓を開けてのびのびと寛げる2階LDK
2階にLDKを配置することで、窓を大きく開けても、道路からの視線を気にせずに思うままに寛げます。また、洗面と浴室が1階にあるため、大きなLDK空間と、玄関まわりのたくさんの収納を実現できます。
周辺環境

万代 諸福店:徒歩8分
最寄りのスーパーです。大きな駐車場があり、週末の買い出しに便利です。営業時間 9:00~22:00

コノミヤ住道店:徒歩11分
周辺徒歩圏にスーパーが複数あり、買いたい食材やお買い得によって使い分けができます。営業時間 9:00~21:00

セブンイレブン大東諸福1丁目店:徒歩5分
24時間営業のコンビニが徒歩5分に。お仕事が遅くなった日にも、お買物に立ち寄れ便利です。

ドラッグアカカベ諸福店:徒歩5分
日用品から薬まで、近くにあると何かと嬉しいドラッグストアも徒歩5分です。

ジョーシン大東店:徒歩5分
お引越し後に家電を新調する時はこちらへ。キッズランドコーナーがあり、お子様も退屈しません。

大東諸福郵便局:徒歩5分
郵便局が近く、お引越し後の住所変更がスムーズです。ゆうちょ銀行をご利用の方は、ATMを気軽に利用できます。

東諸福公園:徒歩4分
大きな公園がすぐ近くにある豊かな住環境。幼児広場や遊具広場など、幅広い年齢層が愉しめます。

新田中央公園:徒歩10分
幼児用複合遊具があり、小さなお子様にも楽しめる公園です。災害時の防災施設が設置され安心です。

聖心保育園:徒歩2分
昭和50年開園。専門講師によるスイミングや体操指導があり「健康なこども」等を、めざすこども像とする園です。

諸福幼稚園:徒歩4分
市立の幼稚園もすぐ近くに。長期休業期間も預かり保育を実施しているので、働く親御様に安心です。

大東市立諸福小学校:徒歩4分
小学校は、新一年生でも安心して通学できる近さです。親御様も学校行事に参加しやすいです。

大東市立諸福中学校:徒歩12分
部活動などに忙しくなる中学時代。日が暮れるのが早い季節は気軽に迎えに行ける距離です。
物件概要
総戸数 | 10戸 |
---|---|
今回販売戸数 | 4戸 |
敷地面積 | 77.64m2~122.19m2(23.48坪~36.96坪) |
建物面積 | 110.30m2~133.04m2(33.36坪~40.24坪) |
販売価格 | Ⅰ-2号地:4140万円 |
用途地域 | 第二種中高層住居専用地域 |
建ぺい率 | 60% |
容積率 | 200% |
道路 | 約4.70m |
事業主(売主) | 株式会社フジヒサFJ |
- 所在地:
- 大阪府大東市諸福1丁目
- アクセス:
-
- JR片町線/学研都市線「住道」駅へ徒歩18分
CONTACT
この物件に関するお問い合わせはこちら
まずはお気軽にご相談下さい。